
- Patrick Street Development
- Patrick Street Development
- Patrick Street Development
- Patrick Street Development
- Patrick Street Development
- Patrick Street Development
This knock down and rebuild development in Oakleigh East has real strength and character.
The main request from the client was to accommodate two dwellings with brick façade. High ceilings or cathedral ceilings are some of the many requests from the client and at the same time we should incorporate in to the design the two existing trees.
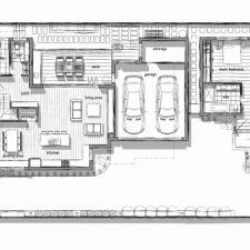
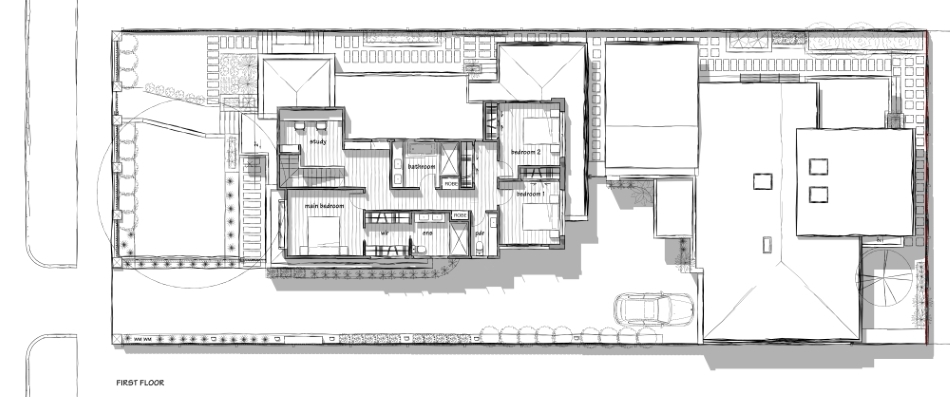
This development was based on a design to accommodate two different generations with a different vision and different needs in their life. The front dwelling is double storey designed for a need of a young and growing family and the back dwelling is single level designed for a need of an elderly couple with a totally different needs.
The whole design stretches between these conditions, twisting and deflecting to negotiate the sloping levels and orientate to the sun. The houses are stretched between these conditions, shifting from the predominantly brick to the mix between the brick facade and modern panel cladding.
The both houses have a north side open plan living areas which are extended out on an extensive timber deck with an alfresco area surrounded by beautiful garden. We manage to incorporate the exiting tree in the back creating a beautiful private court in which the family can enjoy having an excess through the big doors from the living area.
Abundant natural light, good natural ventilation, distinctive finishes, hydronic panels throughout, operable skylights and automated highlight windows, water tanks, energy efficient windows and a well-insulated building fabric, are some of the features that make this a truly unique and likeable family home.
From the very beginning the client had a distinct vision on what they wanted and what their needs are. We are so happy that we help them to have made their vision come to life and the result is a beautiful home that not only meets the client’s brief, but also has a real strong sense of visual identity.
Status – Under Town Planning
© Copyright All Rights Reserved
Rendered by Dome Design






