
- Bryants Road Development
- Bryants Road Development South Elevation
- Bryants Road Development North Elevation
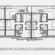
- Bryants Road Development ground floor plan
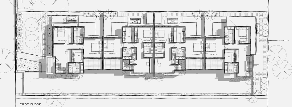
- Bryants Road Development first floor plan
This innovative and contemporary four townhouses development is located in Dandenong South.
The biggest challenge of the design was to convince the council to approve a development with all four dwellings been double storey.
Although a contemporary design, the townhouses are respectful of the surrounding neighbourhood in both scale and materials. The proposed development incorporates materials and finishes that create a well-articulated development and makes a positive contribution to the street scape.
The contrast between the dark brick and the mix of the shades of white colour on the facade are giving nice contrast against the well landscaped garden which at the same time is providing a good transition with the neighboring houses.
A contemporary styled cladding is a reference to the adjoining weatherboard properties.
The design was based on passive solar principals; north side living and open areas, abundant natural light, good natural ventilation, water tanks, energy efficient windows and a well-insulated building fabric.
This contemporary design provides nice sustainable home for the occupants and still delivers a good return on investment for the client while being respectful to the neighbourhood and addressing the needs of the council.
Under Construction Images
- Bryants Road Development – under construction
- Bryants Road Development – under construction
- Bryants Road Development – under construction
- Bryants Road Development – under construction
- Bryants Road Development – under construction
- Bryants Road Development – under construction
Status – Under Construction
© Copyright All Rights Reserved
Rendered by Dome Design










